- Woonoppervlakte
- Circa 117 m²
- Perceeloppervlakte
- Circa 133 m²
- Bouwjaar
- Gebouwd in 1974
- Aantal kamers
- 7 kamers (5 slaapkamers)
WAUW! ALGEHEEL GEMODERNISEERDE EENGEZINSWONING MET DAKKAPELLEN, ZONNIGE TUIN EN
VRIJ UITZICHT
In het geliefde Gouda Noord op een groene locatie ligt deze perfect afgewerkte en volledig
instapklare woning. Dit object is subliem afgewerkt en biedt een unieke combinatie van luxe, comfort
en een prachtige ligging aan de rand van het Noorderhout. De woning is verkeert in een topconditie
en heeft een moderne keuken, luxe sanitair en maar liefst 5 slaapkamers te bieden!
Dankzij de twee dakkapellen op de tweede verdieping is ook deze verdieping optimaal te benutten.
Op de begane grond zorgt de PVC-visgraatvloer in combinatie met de nieuwe houtkachel voor een
warme en hoogwaardige uitstraling. Met een woonoppervlakte van 117m² is dit een ideale,
instapklare gezinswoning. De zonnige achtertuin op het zuiden biedt veel privacy en is een heerlijke
plek om buiten te genieten. Voorzieningen zoals winkelcentrum Bloemendaal, basisscholen en
uitvalswegen liggen op korte afstand. Daarnaast fiets je binnen vijf minuten via de Omloopkade zo
naar het prachtige Reeuwijkse Plassengebied. Hier woon je op een mooie plek aan de groene
buitenrand van Gouda.
VERHUIZEN ZONDER TE KLUSSEN!
ENERGIELABEL A
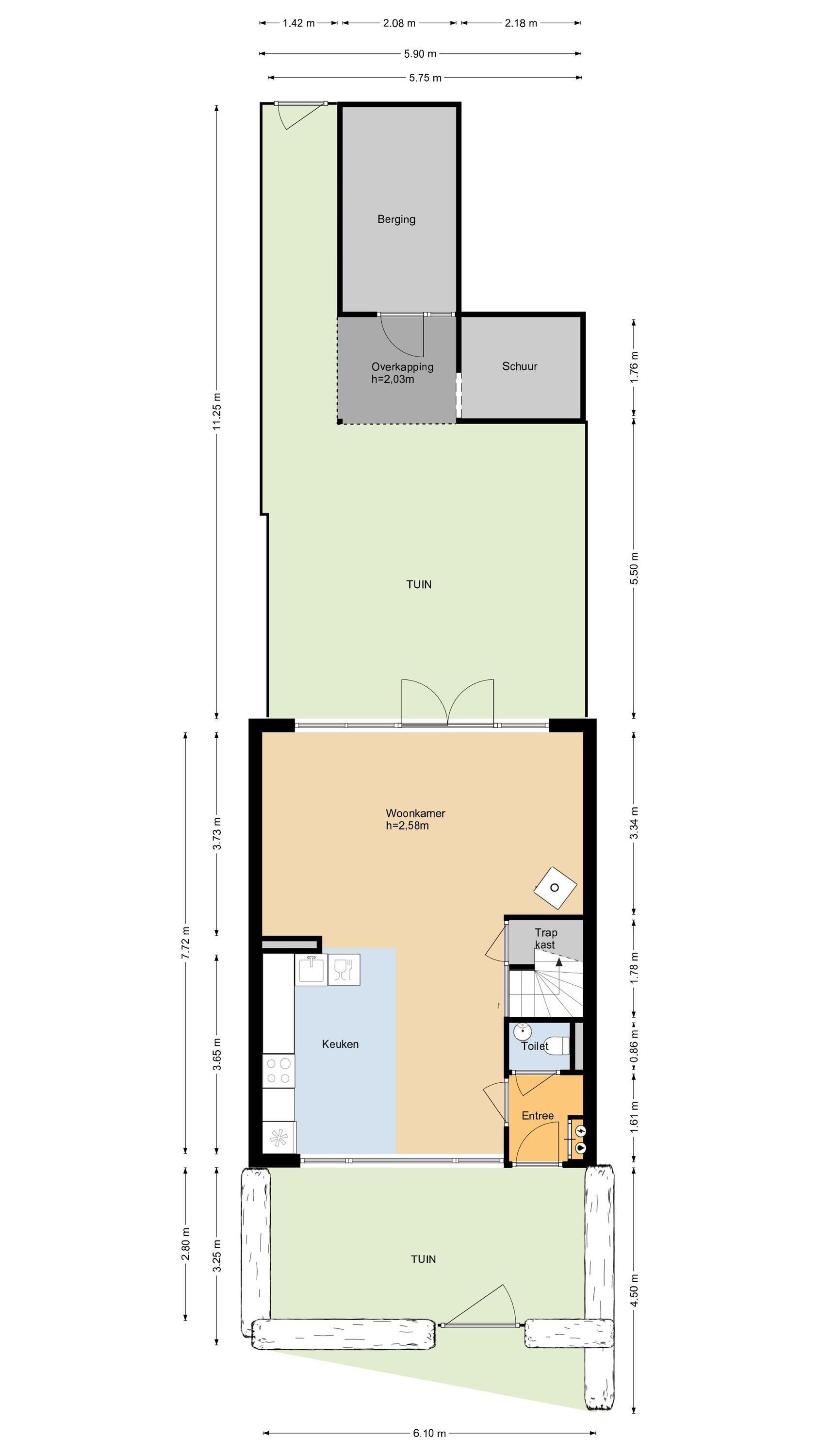
Bouwjaar 1974. Woonoppervlakte ca. 117m2. Inhoud 367m3. Externe bergruimte ca. 11,7m2.
Begane grond:
Via de entree kom je binnen in een keurige hal met de trapopgang naar de eerste verdieping, een
moderne meterkast en een luxe uitgevoerde toiletruimte met hangend toilet en stijlvolle kraan. De
ruime living voelt direct warm en uitnodigend dankzij de prachtige PVC-visgraatvloer en de nieuwe
houtkachel die extra sfeer brengt. De strakke, gladde wanden en de grote vernieuwde pui
zorgen voor een lichte en moderne uitstraling én een prachtig zicht op de zonnige achtertuin. Aan de
voorzijde bevindt zich de nieuwe L-vormige keuken, uitgevoerd in een zwarte kleurstelling met een
grijskleurig werkblad en voorzien van alle gewenste inbouwapparatuur. Vanuit de keuken en het
zitgedeelte heb je aan de voorzijde vrij uitzicht over groen en water.
De open indeling maakt dit een heerlijke leefruimte waar koken, wonen en ontspannen moeiteloos
samenkomen. Praktisch is ook de aanwezige trapkast, ideaal voor extra opbergruimte. De gehele
begane grond is tot in detail strak en hoogwaardig afgewerkt en v.v. vloerverwarming.
1e verdieping:
De ruime overloop biedt toegang tot alle vertrekken en de trapopgang naar de tweede verdieping. Op
deze verdieping bevinden zich maar liefst vier slaapkamers, waarvan twee aan de voorzijde. Eén
slaapkamer aan de voorzijde is voorzien van twee vaste kasten en meet circa 2,19x2,39 m. De andere
ruime slaapkamer aan de voorzijde heeft een afmeting van circa 3,55x2,39m. De luxe alkoof, volledig
betegeld, is voorzien van een wastafel, grote inloopdouche, hangend toilet en mechanische ventilatie,
met een afmeting van circa 1,77x3,55m. Aan de achterzijde bevinden zich een ruime slaapkamer van
circa 3,54x3,28m. en een iets kleinere slaapkamer van circa 2,91x2,26m. Alle kamers en ruimtes op
deze verdieping zijn strak en hoogwaardig afgewerkt, waardoor een lichte en comfortabele
leefomgeving ontstaat.
2e verdieping:
De overloop op de tweede verdieping biedt toegang tot een vaste bergruimte aan de voorzijde en
doorloop naar de praktische wasruimte, voorzien van een wastafel en aansluitingen voor wasmachine
en droger. De ruime slaapkamer van circa 2,62x3,68m. is voorzien van twee dakkapellen, waardoor er
veel lichtinval is en een prettig uitzicht ontstaat. In de kamer is een stijlvolle op maat gemaakte
kastenwand geplaatst, waarin de combiketel netjes is verwerkt. Als bijzonder extra detail is er een
ovaalvormig ligbad met luxe kraan aanwezig, dat een ware wellness-sfeer aan de verdieping toevoegt.
De gehele verdieping is strak en hoogwaardig afgewerkt, met een visgraat PVC-vloer die de luxe
uitstraling van de woning doorzet.
Buiten:
De woning beschikt over een ruime voortuin, fraai aangelegd met groen, bestrating en een praktisch
houthok, wat direct een verzorgde indruk geeft. De achtertuin ligt op het zuiden en geniet daardoor
de hele dag van de zon. De tuin is strak aangelegd met fraaie schuttingen en een ruime stenen schuur
die is uitgebreid met een extra houten berging en overkapping, waarbij de schuur is afgetimmerd met
rabatdelen. De achtergevel is eveneens afgewerkt met fraai houtwerk en een dakkapel met zinken
delen. In combinatie met de nieuwe kozijnen zijn de gevels in uitstekende conditie, wat bijdraagt aan
een warme en verzorgde uitstraling van de woning.
Plaswijck:
Weidelust 29 ligt in de wijk Plaswijck, in het noorden van Gouda, vlakbij de Reeuwijkse Plassen. De
wijk dankt zijn naam aan deze nabijheid van water en kenmerkt zich door een groene, rustige
omgeving met veel waterpartijen en parken. Het is een prettige woonomgeving voor gezinnen en
mensen die van rust en natuur houden. In de wijk zijn diverse voorzieningen aanwezig, zoals scholen,
kinderopvang, winkels en recreatiemogelijkheden, terwijl het centrum van Gouda en het station goed
bereikbaar zijn. Plaswijck wordt daarnaast gekenmerkt door actieve bewonersparticipatie en
toekomstgerichte projecten op het gebied van duurzaamheid. Door de ligging nabij de plassen en de
groene, rustige omgeving biedt Plaswijck een aantrekkelijke en aangename woonomgeving in Gouda
Noord.
Algeheel verbouwd:
Tussen 2020 en 2021 is dit huis compleet gestript en heeft een ware metamorfose ondergaan.
Denk hierbij aan:
- het schuine dak is compleet vervangen
- de begane grond vloer is geïsoleerd met isolatieschuim
- Remeha Tzerra Ace 39C combiketel 2021
- de gehele elektrische installatie 2021
- twee dakkapellen geplaatst 2021
- keuken vernieuwd
- gehele woning v.v. extra isolatie
- sanitair vernieuwd
- diverse kozijnen (aluminium) vernieuwd;
- de betonnen begane grond vloer heeft groot onderhoud gehad
Disclaimer:
Deze woning is ingemeten volgens de NEN2580 en voorzien van een meetcertificaat. De meetinstructie biedt een uniforme manier van meten, maar sluit kleine verschillen in meetuitkomsten niet uit. Alle informatie is bedoeld als uitnodiging tot het doen van een bod of het starten van onderhandelingen. Aan deze woninginformatie kunnen geen rechten worden ontleend.
Overdracht
- Vraagprijs
- € 489.000 k.k.
- Status
- Verkocht
- Aanvaarding
- In overleg
Bouw
- Object type
- Eengezinswoning, geschakelde woning
- Soort bouw
- Bestaande bouw
- Bouwjaar
- 1974
- Soort dak
- Zadeldak bedekt met pannen
Oppervlakte en inhoud
- Woonoppervlakte
- 117 m²
- Perceeloppervlakte
- 133 m²
- Inhoud
- 367 m³
- Externe bergruimte
- 12 m²
Indeling
- Aantal kamers
- 7 kamers (5 slaapkamers)
- Aantal badkamers
- 1 badkamer
- Badkamervoorzieningen
- Toilet, douche, wastafel
- Aantal woonlagen
- 3 woonlagen
Energie
- Energielabel
- A
- Energielabel registratie
- 27-11-2025
- Isolatie
- Dakisolatie, muurisolatie, vloerisolatie, dubbel glas
- Verwarming
- Cv-ketel
- Warm water
- Cv-ketel
- Cv ketel
- Remeha tzerra ace 39c combiketel gas gestookt uit 2021 (eigendom)
Buitenruimte
- Ligging
- Aan rustige weg, in woonwijk, vrij uitzicht, in bosrijke omgeving
- Tuin
- Achtertuin, voortuin
- Afmetingen achtertuin
- 66 m² (11.25 meter diep en 5.9 meter breed)
- ligging tuin
- Gelegen op het zuiden en bereikbaar via achterom
Bergruimte
- Schuur / berging
- Vrijstaand steen
- Voorzieningen
- Voorzien van elektra
Garage
- Soort garage
- Geen garage
Parkeergelegenheid
- Soort parkeergelegenheid
- Openbaar parkeren
Energieverbruik in Gouda
Energielabel deze woning
Energielabel A
Publicatie energielabel: 27-11-2025
Stroomverbruik per jaar
(Gemiddelde tussenwoning in Gouda)
Gasverbruik per jaar
(Gemiddelde tussenwoning in Gouda)
* Cijfers zijn afkomstig van het CBS en bedoeld als indicatie en kunnen verschillen voor deze woning
Indicatie hypotheeklasten
Eigen inleg:
Spaargeld / overwaarde
Rente:
Laagste 10-jaars rente
Laagste 10-jaars rente
2,85% - Centraal Beheer Groen... - NHG
3,08% - Centraal Beheer Groen... - 80%
Laagste 20-jaars rente
3,29% - Centraal Beheer Groen... - NHG
3,52% - Centraal Beheer Groen... - 80%
Laagste 30-jaars rente
3,41% - Centraal Beheer Groen... - NHG
3,74% - Centraal Beheer Groen... - 80%
Hypotheek:
Bruto maandlasten: € 0 p/m
Netto maandlasten: € 0 p/m
Hoe berekenen we dit?
Het rentepercentage is gebaseerd op de laagste 10 jaars vaste rente voor één hypotheekdeel. De vermelde rente (3.08% zonder NHG) is gecontroleerd op 19-01-2026. Deze berekening is gebaseerd op een annuïteitenhypotheek die volledig wordt afgelost, waarbij de maandlasten gedurende de gehele looptijd gelijk blijven. De werkelijke rente en netto maandlasten kunnen variëren, afhankelijk van uw persoonlijke situatie en de hypotheekverstrekker. Raadpleeg een financieel adviseur voor een nauwkeurige berekening en advies. Aan deze berekening kunnen geen rechten worden ontleend; het dient enkel als indicatie.
Documentatie
Kadastrale kaart
Leefomgeving
Brochure
Plattegronden PDF
WOZ waarderapport
BAG uittreksel
Bezoek onze website
Bezichtiging
Bod uitbrengen
Waardebepaling
Zoekopdracht
Alles downloaden
Zonnegrenzen bekijken
Op de kaart
Inwoners in Gouda
Cijfers voor postcodegebied 2804
- Totaal aantal inwoners
- 12195 inwoners
- Mannen
- 47%
- Vrouwen
- 53%
Inwoners in Gouda
Cijfers voor postcodegebied 2804
- tot 15 jaar
- 16%
- 15 tot 25 jaar
- 10%
- 25 tot 35 jaar
- 19%
- 45 tot 65 jaar
- 28%
- 65 en ouder
- 27%
Huishoudens in Gouda
Cijfers voor postcodegebied 2804
- Eenpersoons zonder kinderen
- 35%
- Meerpersoons zonder kinderen
- 32%
- Huishoudens zonder kinderen
- 67%
Huishoudens in Gouda
Cijfers voor postcodegebied 2804
- Huishoudens met één kind
- 8%
- Huishoudens met meerdere kinderen
- 26%
- Huishoudens met kinderen
- 34%
Woningen in Gouda
Cijfers voor postcodegebied 2804
- Woningen voor 1945
- 1%
- Woningen tussen 1945 en 1965
- 1%
- Woningen tussen 1965 en 1975
- 56%
- Woningen tussen 1975 en 1985
- 37%
- Woningen tussen 1985 en 1995
- 3%
Woningen in Gouda
Cijfers voor postcodegebied 2804
- Woningen tussen 1995 en 2005
- 1%
- Woningen tussen 2005 en 2015
- 2%
- Woningen na 2015
- 1%
- Huurwoningen
- 40%
- Koopwoningen
- 60%
Overige in Gouda
Cijfers voor postcodegebied 2804
- Gemiddelde WOZ waarde
- € 229.000,-
- Personen onder de 65 met uitkering
- 8%
Overige in Gouda
Cijfers voor postcodegebied 2804
- Adressen per km²
- 2159
- Stedelijkheid (schaal 1 op 5)
- 80%
Korte feiten over Gouda
Gouda is een stad en gemeente in het oosten van de provincie Zuid-Holland in Nederland met 75.763 inwoners (1 januari 2024, bron: CBS) op een grondgebied van 16,92 km². De stad is gelegen in Midden-Holland en in het stedelijk gebied de Randstad, op ruwweg gelijke afstand van Rotterdam, Utrecht en Den Haag. Gouda heeft een regiofunctie binnen het Groene Hart, waar het qua inwoners de grootste stad en de op een na grootste gemeente is (na Alphen aan den Rijn). Het is naar inwonertal gemeten de 48e gemeente van Nederland en de 12e gemeente van Zuid-Holland.
Van Rhijn Makelaars
Indien u vragen heeft of u wilt een bezichtiging inplannen, dan kunt u gebruik maken van het formulier hiernaast. Er zal daarna op korte termijn contact met u worden opgenomen.
van Limburg Stirumstraat 2
2805 BD, Gouda
0182 – 748 739 info@vanrhijnmakelaars.nl www.vanrhijnmakelaars.nlContact opnemen
Over Van Rhijn Makelaars
Van Rhijn Makelaars, voorheen bekend als Uw Verkoopmakelaars en UwAankoopmakelaars.nl, is uw partner bij het zoeken naar een nieuwe woning of het verkopen van uw huidige woning. Bent u toe aan een grotere woning of wilt u gewoon in een andere omgeving wonen? Dan bent u bij ons aan het juiste adres.
Bij Van Rhijn Makelaars kunt u terecht voor de aankoop, verkoop en verhuur van uw woning in Reeuwijk, Gouda, Bodegraven, Boskoop, Haastrecht, Waddinxveen, Moordrecht en Woerden. Wij bieden alle diensten die u van een makelaar verwacht, maar dan tegen een vast tarief dat vooraf is bepaald. Dit geldt voor zowel de verkoop als de aankoop van uw woning.
Wij zetten moderne tools in, maken duidelijke afspraken en zijn transparant in onze werkwijze. Zo kunt u met een gerust hart uw zoektocht naar een nieuwe woning starten of uw huidige woning verkopen.
Nieuwste reviews
-
Wederik 3
Fijn contact met de makelaar. Goeie argumenten maar af en toe een missertje. Deskundig en volhardend. Stelt de klant centraal.Tevreden over...
-
Houtenstraat 1
Ontzettend prettig begeleid tijdens het hele verkooptraject van mijn woning. Een jong en gedreven team met passie voor het vak, dat snel en...
-
E. Verkleij
Het team van van Rhijn Makelaars heeft ons geholpen met de verkoop van onze woning. Alles vlot en soepel verlopen. Het contact is fijn en di...